美迪装饰

高品质装修选美迪

十年后仍爱我家

24小时咨询热线

400-096-6088

您的位置: 首页 > 家装百科 > 美家记 > 美家记 | 湖南这对夫妻家中藏着一个“多肉王国”

美家记 | 湖南这对夫妻家中藏着一个“多肉王国”

浏览数:6470次 | 发布时间:2018-12-21 |
分享到:

美式轻奢风,在保留原有美式风格的同时,搭配上更为简洁明快的家具饰品,整体给人一种清爽明朗的感觉。本期《美家记》,小美带你走进江老师的家,一进屋子,就感受到了浓浓的美式氛围。家里的摆件、挂画、绿植、抱枕,都体现出业主夫妇的对精致生活的热爱。

美家信息

美家欣赏

颜值很高的玄关设计,复古的挂钟、创意图案的油画都特别吸睛。

客厅整体色调较清雅,还加入了很多金色的轻奢元素。从玄关的摆件到客厅的吊灯、茶几、凳子,都能看到质感的金色。

简洁的空间中,带有对细节的专注,整个空间也因为这些精致的细节,变得格外光彩夺目。

沙发背后是吧台,平时在这儿小酌一杯,也很有情调。

电视背景墙走的是简洁大气风格,白色的墙面,造型特别的摆件,柔和中彰显着沉稳大气。

摆上一些花儿做点缀,空间瞬间变得灵动起来。

餐桌椅采用简约的美式造型,有点复古的气息。值得一提的是,家里的挂画,都是业主夫妇请专人绘制的,很是特别。

厨房空间以白色为主色调,再搭配上金属边框的玻璃推拉门,简约又时尚。

主卧从地面到家具再到软装,色彩层次丰富,家具保留了美式的尊贵复古味道,软装清新舒适。

次卧整体色调较为柔和,舒适休闲的飘窗,在光线的投射下,熠熠生辉,给人愉悦轻快之感。

阳台上摆着一架古筝,文艺的氛围油然而生。女主人江老师教了很多年古筝,还有不少学生在当老师呢。

阳台简直是“多肉王国”,一整个花架,都摆满了可爱的多肉,生机勃勃、活力满满!

美家故事

业主夫妇从事教育事业多年,可谓是“桃李满天下”。女主人江老师更是热爱生活,阳台是她最爱的休闲区域。闲时,她可以在这儿待上一整天,看看书、打理一下多肉。

美家分析

 

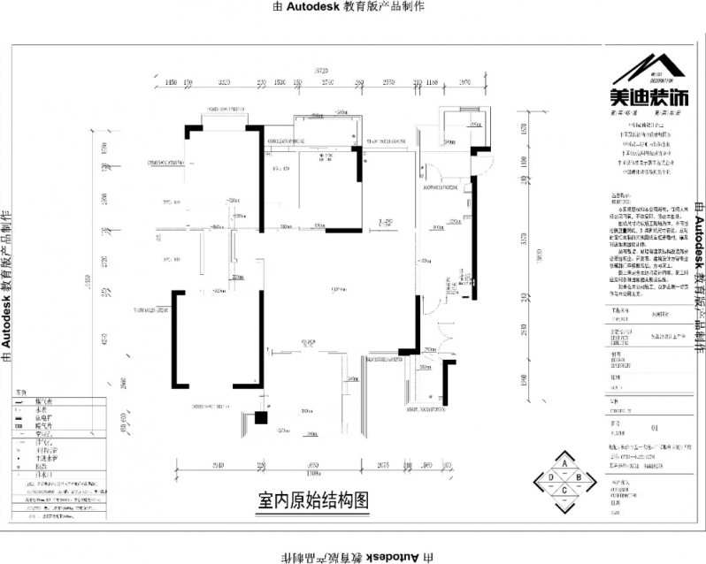
▲室内原始结构图

1.厨房原结构空间比较零散,吴海波设计师将厨房和厨房内的小阳台连为一体,改造后房空间方正,面积扩大。

2.由于业主的孩子已在外求学,不常回家。而且主卧的卫生间较小,满足不了业主的日常需求。吴海波设计师将次卧卫生间与主卧卫生间合并,在主卧中打造了一个带有衣帽间的超大卫生间。

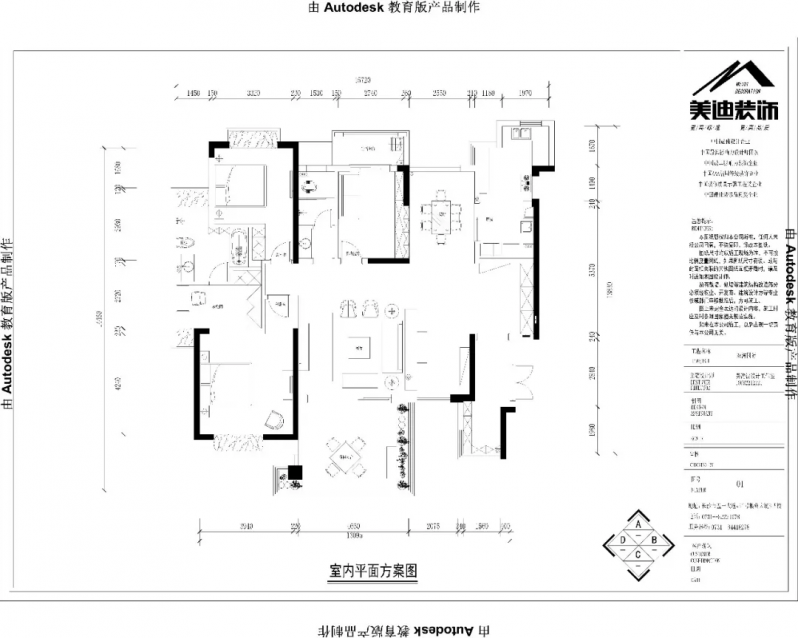
▲室内平面布置图

栏目后记

在采访过程中,小美充分感受到了女主人对多肉的喜爱。她对我们说:“帮我的肉肉多拍点照片吧,我自己拍不好。”连男主人都调侃道:“她喜欢多肉啊,比喜欢我还多些。”哈哈,如此有爱的业主夫妇,小美不喜欢都难呀!

设计师简介

分享到:

相关阅读

免费获取报价