美迪装饰

高品质装修选美迪

十年后仍爱我家

24小时咨询热线

400-096-6088

您的位置: 首页 > 家装百科 > 美家记 > 美家记 | 长沙六口之家,空气里都充斥着幸福的气息

美家记 | 长沙六口之家,空气里都充斥着幸福的气息

浏览数:8638次 | 发布时间:2018-07-24 |
分享到:

有人说:“幸福就是,一屋两人,三餐四季。”对于王女士来说,幸福可能就是在美好的屋子里,和家人在一起。本期美家记,小美来到了王女士的家,冷色调的屋子,却无处不透露着幸福的气息。王女士作为美迪大家庭曾经的一员,在房屋需要装修时,第一时间想到美迪装饰。是家人,所以信赖。



楼盘位置:悦湖山

户型:四室两厅

面积:160平

设计风格:北欧风


简单却不失大气是小美对这套房屋的第一印象,全屋以白色、灰色为主色调,再用深色家具加以点缀,简约的布置下,又不缺少该有的活力;统一使用冷色调,反而显得整个家宽敞又整洁。一家六口居住,收纳问题不容忽视,设计师也是考虑到了这一点,所以对原户型进行了改动。

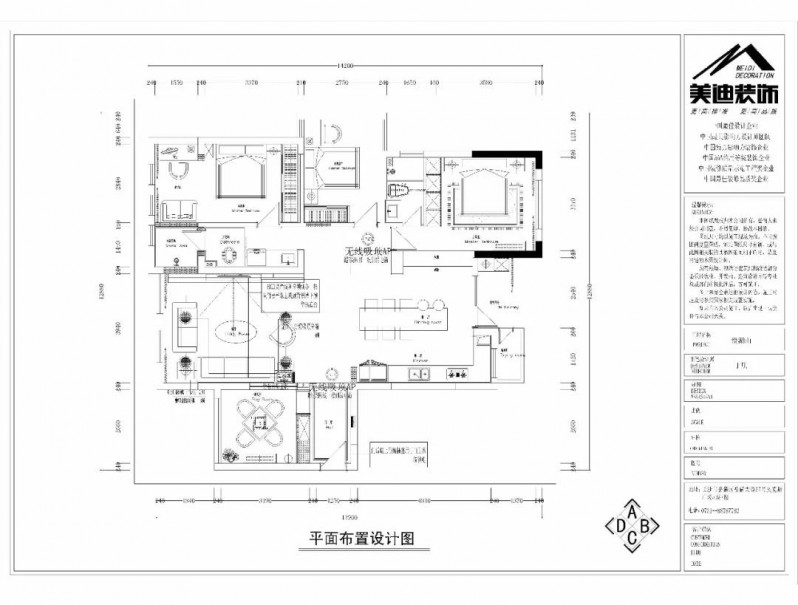
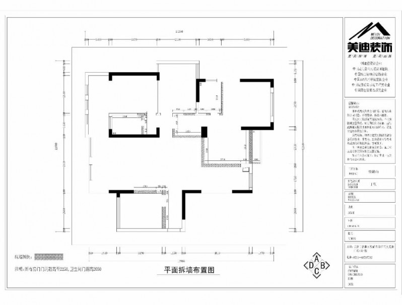
平面布置图设计图

▲改动前

▲改动后


房屋的户型变动不算小,为了扩大餐厅区域,设计师将原本的衣帽间拆除,又考虑到一家人的收纳问题,设计师还将餐厅和卧室墙面设计成双面都可开的收纳柜,收纳空间瞬间扩大不少。

▲客厅布置图

客厅以灰白两色为主色调,大理石花纹的地砖使整个空间显得颇有格调,白色的墙面搭配暗色的沙发,明暗的强烈对比,也给人留下深刻印象。若说点睛之笔,那一定非窗帘莫属。当暖黄色窗帘碰上冷色调家具,犹如宁静的山间突然浮现出一抹日光,温暖又明亮。


▲电视背景墙

电视背景墙也走的是简单大气风格,灰色的墙面配上白色大理石花纹,普通又不失特色,简约而不简单。

餐厅&厨房

开放式厨房显得空间更为宽敞,设计师为主人量身定做的吧台式餐桌,也使原本不够大的区域,瞬间扩大了几分。


墙面上的双面柜,不仅提升了收纳空间,而且将单一的墙面设计变得颇有特色。

▲卧室一角

卧室的配色也继续以白色为主色调,白色的柜子搭配上深色的床具,深浅不一,却也极度融合。

▲儿童房一角

儿童房的配色明显活泼了许多,粉色的窗帘、白色的书柜和原木色的小椅子,与之前的黑白灰家具不同,它们充满了活力。房间的采光也很好,对孩子们的学习与成长也有很大帮助。

▲室内阳台

小小的阳台,也阻挡不了女主人热爱生活的心,摆上几盆绿植,为生活换上一种新鲜气息。

业主有话说


"在装修期间,我充分感受到设计师和项目经理的用心。他们总是为我提出各种建议,对各种细节都非常看重,分析利弊之后再由我做决定。冰箱单独走线这一点,是我没考虑到的部分,他们却为我想到了。”

采访后记

小美最初来到业主家,就被一阵笑声吸引,定睛一看原来是两个小孩在客厅嬉笑玩耍。业主夫妻有一双儿女,女儿三岁未满,儿子才五个月大。这可爱又稚嫩的笑声就是这个五个月的小不点发出来的,小美不知不觉就被他甜甜的笑颜迷住了,爷爷奶奶也不时露出甜蜜的笑容,怪不得这屋子里一直充斥着幸福的气息!

(本期编辑:廖茂佳)

分享到:

相关阅读

免费获取报价